Maliebaan 97- Begane grond voorzijde.
Aan de statige Maliebaan in Utrecht Oost ligt dit prachtige pand waarin in 2021, 13 geweldige appartementen zijn gerealiseerd.
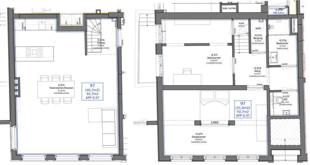
Nummer 97 betreft een 3-kamer appartement (woonoppervlakte 93 m²) welke hoogwaardig is afgewerkt. Dit appartement is gelegen op de begane grond aan de voorzijde met zicht op de Maliebaan en gigantisch veel licht! De de slaap- en sanitairvoorzieningen zijn gelegen in het souterrain.
Alle appartementen in het complex worden geheel gestoffeerd opgeleverd en zijn klaar om door de eerste bewoners ingericht en bewoond te worden!
Een luxe en hotelgevoel op een prachtige en gewilde locatie.
Ligging
De ligging is verrassend goed. De Maliebaan is voorzien van groenstroken en onder andere gelegen tussen de Burgemeester Reigerstraat en de Nachtegaalstraat en heerlijk dichtbij Park Lepelenburg, de singels en Wilhelminapark. Voor de dagelijkse boodschappen en fijne horecagelegenheden zit je met de gezellige Burgemeester Reigerstraat en de Nachtegaalstraat altijd goed. Een Albert Heyn, slager, restaurantjes en meer. Ook het openbaar vervoer (bushaltes) liggen op loopafstand. Daarnaast zijn uitvalswegen ook goed bereikbaar voor bewoners met een auto. Parkeren op basis van parkeervergunningen en beschikbaarheid bij de gemeente Utrecht.
Geschiedenis
de Maliebaan was eeuwen geleden een hotspot voor studenten en de rijke burgerij. Wij kunnen het ons maar moeilijk voorstellen, maar in de Gouden Eeuw was Utrecht een behoorlijk ingeslapen bedoening. Vooral voor jonge mensen viel er weinig te beleven. Vandaar dat een clubje studenten aan de stadsbestuurders vroeg of zij het Maliespel mochten spelen.
Bij een potje Malie moest men met een houten stok een bal in zo min mogelijk slagen over een rechte baan zien te krijgen. Binnen de stadsmuren was helaas geen ruimte voor een lange rechte baan en dus werd er een Maliebaan gebouwd bij Lepelenburg.
Het aanleggen van de Maliebaan bleek een gouden greep, want de laan veranderde al snel in een populaire spot voor studenten en de gegoede burgerij. Al snel openden rond de Maliebaan verschillende tentjes en café’s hun deuren en werd er tot de late uurtjes gefeest. Rijkelui die niet in de buurt woonden, lieten zelfs vakantiehuisjes rondom de baan bouwen. Later vestigden zij zich hier voorgoed, waardoor het rondom het gebied vol kwam te staan met statige huizen.
Indeling appartement Maliebaan 97:
Entree, hal, royale living met grote ramen aan de voorzijde van het pand en uitzicht over de Maliebaan, luxe open keuken met kookeiland v.v. spoelbak, vaatwasser, koel/vriescombi, combi-oven, inductiekookplaat.
Vanuit de keuken is de trap naar het souterrain met 2 ruime slaapkamers, het toilet, de berging/wasruimte en de luxe badkamer zijn gelegen. Het betreft een zwevend toilet met fonteintje en een badkamer met wastafelmeubel in inloopdouche.
Bijzonderheden appartementen:
- Woonoppervlakte: 93 m²;
- Huurprijzen € 2.400,- excl. g/w/l, internet, tv en gemeentelijke (huurders-) lasten per maand;
- Servicekosten, stoffering en een was- droog combinatie zijn bij de huurprijs inbegrepen;
- Contracten voor stadsverwarming, internet en televisie zijn door huurder zelf af te sluiten, de appartementen zijn v.v. stadsverwarming. Contracten hiervoor dienen te worden aangevraagd via Eneco;
- Electra en water d.m.v. voorschot aan verhuurder;
- Huurder dient een minimaal inkomen te hebben van driemaal de maandhuur (bruto);
- Waarborgsom 2 maanden huur;
- Schoonmaakkosten bij vertrek zijn voor rekening van huurder € 425,- in te houden van de waarborgsom;
- Gemeenschappelijke tuin: te gebruiken door huurders met appartement zonder eigen buitenruimte;
- Oplevering:
------------------------------------------------------------------------------------------------------------------------------------------------------------------------------------------------------------------------------------------------------
Maliebaan 97- Ground floor front.
This beautiful building is located on the stately Maliebaan in Utrecht East at in which 13 great apartments have been realized in 2021.
Number 97 is a 3-room apartment (living area 93 m²) which has been finished to a high standard. This apartment is located on the ground floor at the front with a view of the Maliebaan and lots of light! The sleeping and sanitary facilities are located in the basement.
All apartments in the complex are delivered fully furnished and are ready to be furnished and occupied by the first residents!
A luxurious and hotel feeling in a beautiful and popular location.
Location
The location is surprisingly good. The Maliebaan has green areas and is located between Burgemeester Reigerstraat and Nachtegaalstraat and wonderfully close to Park Lepelenburg, the canals and Wilhelmina Park. For daily shopping and nice catering establishments, the cozy Burgemeester Reigerstraat and the Nachtegaalstraat are always in the right place. An Albert Heyn, butcher, restaurants and more. Public transport (bus stops) are also within walking distance. In addition, arterial roads are also easily accessible for residents with a car. Parking based on parking permits and availability from the municipality of Utrecht.
History
Centuries ago, the Maliebaan was a hotspot for students and the wealthy citizenry. It's hard for us to imagine, but Utrecht was a pretty sleepy place during the Golden Age. There was little to do, especially for young people. That is why a group of students asked the city administrators if they could play the Malies game.
In a game of Malie you had to use a wooden stick to get a ball over a straight path in as few strokes as possible. Unfortunately, there was no room for a long straight track within the city walls, so a Maliebaan was built near Lepelenburg.
The construction of the Maliebaan turned out to be a golden opportunity, because the avenue quickly turned into a popular spot for students and the upper class. Soon, several tents and cafés opened their doors around the Maliebaan and parties continued until the early hours. Rich people who did not live nearby even had holiday homes built around the track. Later they settled here permanently, causing the surrounding area to become full of stately homes.
Layout of apartment Maliebaan 97:
Entrance, hall, spacious living room with large windows at the front of the building and a view over the Maliebaan, luxurious open kitchen with cooking island with sink, dishwasher, fridge/freezer, combination oven, induction hob.
From the kitchen there are stairs to the basement with 2 spacious bedrooms, the toilet, the storage/laundry room and the luxurious bathroom. It concerns a floating toilet with sink and a bathroom with washbasin and walk-in shower.
Apartment details:
- Living area: 93 m²;
- Rental prices € 2.400,- excl. g/w/l, internet, TV and municipal (tenant) charges per month;
- Service costs, upholstery and a washer-dryer combination are included in the rental price;
- Contracts for district heating, internet and television can be concluded by the tenant himself, the apartments are equipped with district heating. Contracts for this must be requested via Eneco;
- Electricity and water through advance payment to landlord;
- Tenant must have a minimum income of three times the monthly rent (gross);
- Deposit 2 months rent;
- Cleaning costs upon departure are borne by the tenant, € 425,- to be deducted from the deposit;
- Communal garden: to be used by tenants with an apartment without their own outdoor space;
- Delivery from 1st of april.
| Type woning | Appartement |
| Huurprijs | € 2.400 per maand |
| Beschikbaarheid | Vanaf 01-04-2026 |
| Oppervlakte | 93 m2 |
| Inhoud | 265 m3 |
| Slaapkamers | 2 |
| Badkamers | 1 |